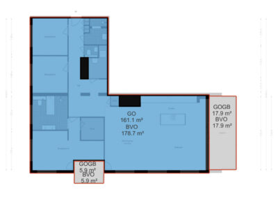
XAVIER – Photo impression of our project Xavier at the Gustav Mahler laan 379 in Amsterdam Meetrapport Woning Media – Gustav Mahlerlaan 379 Amsterdam